400-003-8066

香蕉视频APP在线观看案例分析

您所在的位置: 首頁 > 資訊頻道 > 技術支持 > 技術文章 > 首都香蕉视频APP污版館場地擴聲係統改造方案及實施要點

首都香蕉视频APP污版館場地擴聲係統改造方案及實施要點

來源:ZOBO香蕉视频APP在线观看 發布日期 2023-03-19 瀏覽:

  2022年3月15日,北京香蕉视频APP在线观看電子技術有限公司(以下簡稱ZOBO香蕉视频APP在线观看 )收到一封來自北京冬奧組技術部的感謝信。信中表示,ZOBO香蕉视频APP在线观看提供的會議係統在和冬殘奧會組織委員會上發揮了關鍵作用,為北京的順利開展提供了強有力技術支持。

香蕉视频APP污版館場地擴聲係統改造方案及實施要點

  這份感謝,源自ZOBO 香蕉视频APP在线观看團隊對工作的一份執著,秉承為國爭光的決心,著力創新實踐,參與到北京的服務之中。從2008年北京奧運會,再到2022年,ZOBO 香蕉视频APP在线观看團隊為再次服務奧運會感到榮幸和自豪!此次不僅得到“北京2022年和冬殘奧會組織委員會”的充分肯定,也與北京結下了一段“冰雪奇緣”。

香蕉视频APP污版館場地擴聲係統改造方案及實施要點


  首都香蕉视频APP污版館作為2022年北京冬奧運會冰上項目短道速滑、花樣滑冰的主賽場,為滿足賽事的需求, 在現有設施的基礎上進行了改擴建,涉及分賽場、運動員公寓、滑冰館、香蕉视频APP污版館、綜合訓練館共五大場館,總建築麵積140254 ㎡。其中,包括香蕉视频APP污版館音視頻係統 、香蕉视频APP污版工藝係統進行改造。下麵就香蕉视频APP污版館場地擴聲係統(以下簡稱“場地擴聲係統”)部分的改造方案及實施要點進行解析。

  一、香蕉视频APP污版館概況

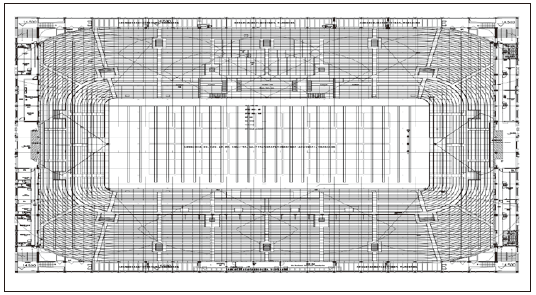
  2022年北京冬奧運會的主要比賽用館首都香蕉视频APP污版館,其建築麵積45 406 ㎡,其中,地下一層為38 842 ㎡,地上四、六層6 564 ㎡,建築高度28.16 m。一層的場地內設有31 m×61 m具有多功能轉換的標準冰場,大頂鋁板造型至冰場的高度為20.6 m,觀眾席區設有15 400個座位,如圖1所示。

1香蕉视频APP污版館場地擴聲係統改造方案及實施要點

圖1 香蕉视频APP污版館內景

  香蕉视频APP污版館的改造項目要建立香蕉视频APP污版建築智能化的專用設施係統,主要包括:大屏幕顯示及控製、場地擴聲係統、廣播電視轉播布線、標準時鍾、升旗控製、比賽設備集成係統、競賽信息實時發布係統。

  二、場地擴聲係統的設計要點及難點

  場地擴聲係統作為覆蓋區域為觀眾席區以及比賽場地(FOB)的固定安裝擴聲係統,主要滿足比賽所需的語言節目並兼顧音樂播放的擴聲要求。

  1、設計要點

  場地擴聲係統的設計及方案的實施依據JGJ31—2003《香蕉视频APP污版建築設計規範》、JGJT179—2009《香蕉视频APP污版建築智能化係統工程技術規程》、JGJ354—2014《香蕉视频APP污版建築電氣設計規範》、GB/T28049—2011《廳堂、香蕉视频APP污版場館擴聲係統設計規範》、JGJ/T131—2012《香蕉视频APP污版場館聲學設計及測量規程》。

  在如此體量的場館內設計場地擴聲係統,需要把握以下幾個要點。

  場地擴聲係統必須有足夠大的聲功率,並且要達到足夠高的語言清晰度,以保證觀眾能聽清晰賽事進程及解說的聲音。同時,還要考慮聲像定位以準確重現賽場的動態位置。

  場地使用傳聲器時,要特別注意采取有效措施避免聲反饋的問題,避免影響比賽的正常進行。

  係統要有冗餘的數字網絡接口,可以用於連接比賽場地區臨時擴展的移動式的擴聲係統。

  為滿足奧運會比賽期間的賽事直播、轉播的需要,係統應具備可調整覆蓋電視轉播評論員區域的聲壓級,或臨時關閉該區域的擴聲設備,以保證該區域聲壓級可控,或沒有擴聲的直達聲。

  係統可以與其他香蕉视频APP污版工藝係統如競賽信息發布係統、現場大屏係統、比賽設備集成管理係統等聯動。

  2、設計難點

  對於整體建築結構,由於不能改變原有的結構,特別是頂棚的整體承載負荷,與安裝揚聲器係統的需求相距甚遠,因此,要對揚聲器係統的吊掛有專門的設計。

  建築聲學環境方麵,香蕉视频APP污版館的吸聲不足,混響時間偏長,因此,希望通過揚聲器的布置解決這一問題。

  比賽期間,短道速滑及花樣滑冰兩項賽事對於擴聲係統有著不同的需求,如表1所示,並且轉換時間短,隻有半天的時間。

  對於現場觀看表演和電視直播,視頻係統、照明係統要比場地擴聲係統更加重要,因此,在項目的實際和實施中,視頻和照明係統要優先考慮。

1.2香蕉视频APP污版館場地擴聲係統改造方案及實施要點

  3、係統方案

  擴聲係統的總體改造方案,係統的音頻控製、傳輸通過Dante網絡構建數字加模擬的混合網,場館內所有音頻信號均匯聚到音頻控製機房進行分發。數字調音台同樣采用一主一備,主調音台可搬至場內進行現場調控,並在主席台區預留音頻接口箱,可接入有線傳聲器、無線傳聲器係統。係統使用時,需要根據不同賽事的使用場景對數字調音台以及功率放大器進行預設。係統基本框架如圖2所示。

2香蕉视频APP污版館場地擴聲係統改造方案及實施要點

圖2 場地擴聲係統原理圖

  對於像奧運會這樣重要的賽事,係統的安全性與可靠性極為重要。除注重選用可靠性高的設備外,對於信號傳輸主幹網采用光纖傳輸,部分采用模擬線纜,以滿足一些特殊的使用場景。同時,設置點對點的直通路徑進行傳輸,如功能機房與功能機房之間、現場不同區域之間、現場與功能機房之間。這種傳輸路徑穩定、延時小,降低數據傳輸中的丟包問題,故障排查簡單。

  係統的配電,根據奧運賽事的需求,均采用雙路市電+ATS+UPS,相關電氣設備安裝於四層音頻控製室。現有供電方式在市電閃絡時不會對擴聲係統造成影響;ATS開關容量160 A,運行方式為互為備用;UPS電源櫃就近安裝於配電櫃旁,輸出65 kW,在線運行,可帶櫃內全部負荷持續供電30 min。為了保障賽時安全運行,在賽前做好配電櫃內所有電氣設備的隱患排查工作,留好備品備件,賽時安排專人對配電櫃進行看護。

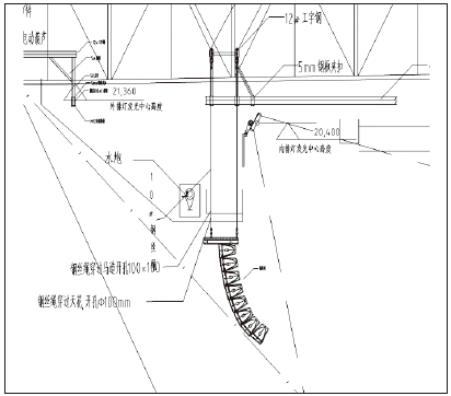
  對於聲場的設計,揚聲器係統既考慮主席台區的覆蓋,又要考慮整個觀眾區的覆蓋;在揚聲器選型上,要符合重量要輕、體積小、聲壓大等性能,以滿足承重、避免建聲缺陷、提高語言清晰度、避讓視頻照明等其他設備等一係列的相關要求。通過仿真軟件NS-1模擬設計,確定揚聲器數量、吊掛高度、投射角度等,以達到香蕉视频APP污版建築設計規範一級指標,聲壓級為105 dB,語音清晰度指數不小於0.5,聲場模擬點位如圖3所示。不同的區域根據實際的麵積、縱深覆蓋需求,對線陣列揚聲器的數量、分頻、吊掛角度與高度進行配置。主擴聲揚聲器係統采用14組雙12英寸三分頻無源全頻線陣列揚聲器,吊掛覆蓋整個觀眾區。其中,北側方向共分8組,每組根據覆蓋區域分別由2~8隻揚聲器單元組成;東西方向各1組,每組4隻揚聲器單元;南側方向共分4組,每組根據覆蓋區域分別由4~8隻揚聲器單元組成。揚聲器布置平麵圖如圖4所示。以評論員席以及播報席區域為例,由於區域觀眾席一排至後一排的高差為15 m,如圖5所示,因此使用了2組線陣列揚聲器進行覆蓋,分別使用了4隻、7隻揚聲器單元,其吊掛角度、高度分別為-7°、20.5 m,-2°、17.9 m,如圖6所示。

3香蕉视频APP污版館場地擴聲係統改造方案及實施要點

圖3 聲場模擬點位圖

4香蕉视频APP污版館場地擴聲係統改造方案及實施要點

圖4 場館揚聲器係統實際布置平麵圖

5香蕉视频APP污版館場地擴聲係統改造方案及實施要點

圖5 評論員席及播報席位區域圖

6香蕉视频APP污版館場地擴聲係統改造方案及實施要點

圖6 覆蓋評論員席及播報席位區域兩組線陣列揚聲器的吊掛

  另外,在香蕉视频APP污版工藝係統中,采用了比賽設備集成管理係統,通過比賽設備集成管理平台,可將場地擴聲係統、大屏顯示係統、賽事運營係統、場地燈光係統以及場地投影係統進行集成互聯,通過將各係統集成聯動,滿足不同使用場景下的功能需求,增加了係統使用運行的方便性、整體性。

  三、係統實施的要點

  係統的設計和實施受場地裝修的限製,既要照顧整個場館美觀,又要滿足場館內功能的使用要求。因此,對於係統方案的實施,隨時與相關方溝通,不斷進行調整優化。

  1、揚聲器的吊掛

  在揚聲器係統吊掛過程中,由於首都香蕉视频APP污版館保留了原有大頂球型網架結構、馬道,在球型網架的結構下還有鋁板造型結構以及龍骨,而揚聲器係統的吊掛點位於大廳頂層鋁板之上,需要穿過結構下懸杆、鋁板和鋁板固定龍骨層,避開燈光線路以及馬道,並且每一組線陣列揚聲器的安裝位置不相同,需要定位,以滿足現場覆蓋的範圍及角度。基於這種情況,在進行了實地勘察測量後,經各方討論,選擇了單獨設計安裝鋼結構吊點的吊掛方式。根據現場不同的位置,定製吊掛揚聲器的鋼架,如圖7、圖8、圖9所示,吊掛高度可以在鋼架上調整。這一結構不僅可以避開場地照明光路等,還可以應對施工過程中馬道等一些設施的更改。

7香蕉视频APP污版館場地擴聲係統改造方案及實施要點

圖7 吊掛揚聲器的鋼架

8香蕉视频APP污版館場地擴聲係統改造方案及實施要點

圖8 吊掛揚聲器鋼架的實景

9香蕉视频APP污版館場地擴聲係統改造方案及實施要點

圖9 揚聲器的吊裝

  2、投影幕布對揚聲器係統的影響

  比賽場地上空設置有巨大的投影幕布,麵積與比賽場地近乎一樣。為此,對場地擴聲係統提出了多種方案。其中,一種方案是調整揚聲器的覆蓋角度,以避免因投影幕布反射形成的回聲,但受整體環境所限,難以實現。另一種方案是考慮采用透聲幕布,揚聲器吊掛在透聲幕布上方,但會影響投影效果。在實施中,采用透聲幕布,經過多方溝通,方案幾經調整,在安裝位置與投影幕布之間取得平衡,采取分段式幕布加揚聲器吊掛調整,將揚聲器吊掛與各幕布之間,並選用8隻小尺寸、高聲壓的點聲源揚聲器P12,既不會影響投影效果,也可滿足聲場覆蓋,達到設計指標。

  3、音頻線纜的敷設

  對於音頻線纜的敷設,由於首都香蕉视频APP污版館初修建於1968年,管線橋架設計相對複雜繁瑣,場館1層至4層垂直橋架沒有貫通,4層的水平橋架也沒有聯通,大大增加了音視頻傳輸線纜敷設的難度,同時大大增加了音頻線纜的敷設長度。因此,在現場的音視頻插座箱與四層音控室之間,采用光纜及中繼設備進行傳輸,包括調音台接口箱、交換機、音頻光端機等。通過數模結合的傳輸方式,解決了信號傳輸線纜過長的問題,並大大增加了信號傳輸的可靠性與安全性,滿足了奧運賽事期間不同賽事的需求,2022年北京冬季奧運會組委會技術組可根據不同使用場景進行切換。

  四、聲學測試結果

  施工完畢後,進行了現場實測,測點如圖10所示。經現場測試,擴聲係統聲壓級可基本達到設計值,其他測量結果見圖11、表2—表4。測試結果反映,該項目達到設計目標及行業相關標準指標。

10香蕉视频APP污版館場地擴聲係統改造方案及實施要點

圖10 測點位置圖

11香蕉视频APP污版館場地擴聲係統改造方案及實施要點

圖11 傳輸頻率特性

12香蕉视频APP污版館場地擴聲係統改造方案及實施要點

  首都香蕉视频APP污版館改造項目的方案設計與實施,體現了簡約而不簡單的理念,具有可靠性、實用性,特別使在前端固定設備的布置、安裝方麵,不斷深化設計;對於控製處理部分的設計,充分滿足前端固定安裝設備至機房控製操作設備之間的傳輸、處理的需求,盡量簡化機房控製設備的操作繁瑣程度,采取集成化的控製方案。係統調試、測試後,運行穩定,清晰度得到用戶的認可,並通過驗收。經過測試賽的應用,證明這項設計達到要求。

選自《演藝科技》2021年第7期 餘佳佳《淺析首都香蕉视频APP污版館場地擴聲係統改造方案及實施要點》,轉載請標注:演藝科技傳媒。更多詳細內容請參閱《演藝科技》。(本文僅用於行業交流學習,並不用於商業用途。文中觀點為作者獨立觀點。如不慎侵涉第三方權益,請與香蕉视频APP在线观看聯絡,香蕉视频APP在线观看將刪除處理。)

網站地圖